
HD-typ European Hoist Electric Single-girder Kran
European Single Girder Overhead Crane är kompakt lyftmaskiner konstruerad och tillverkad i strikt överensstämmelse med FEM och DIN-standarden, som med avancerad teknik och vacker design. Indelad i allmän typ och upphängningstyp, som stöder användningen av en europeisk standard elhiss, lämplig för verkstads- och lagerhantering, stor precisionsmontering och andra ställen.
HD-typ European Hoist Electric Single-girder Kran
Kort beskrivning:
European Single Girder Overhead Crane är kompakt lyftmaskiner konstruerad och tillverkad i strikt överensstämmelse med FEM och DIN-standarden, som med avancerad teknik och vacker design. Indelad i allmän typ och upphängningstyp, som stöder användningen av en europeisk standard elhiss, lämplig för verkstads- och lagerhantering, stor precisionsmontering och andra ställen.

Den kan användas i stor utsträckning inom tillverkning av maskiner, metallurgi, petroleum, petrifaction, hamn, järnväg, civil luftfart, mat, papperstillverkning, konstruktion, elektronikindustrin verkstad, lager och andra materialhanteringssituationer, esp. appliceras på materialhantering som behöver exakt positionering, stor komponent exakt monteringssituation.

Detaljerade bilder:

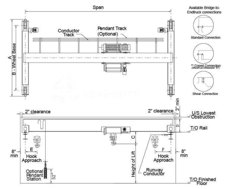
Skiss ritning:

Tekniska parametrar:
Spänna | m | 7,5 | 10,5 | 13,5 | 16,5 | 19,5 | 22,5 | 25,5 |
Kapacitet | t | 1 ~ 12.5t | ||||||
Totalvikt | kg | 1781 ~ 12086 | ||||||
Vagnsvikt | kg | 405 ~ 740 | ||||||
Max. Hjulbelastning | kn | 13,5 ~ 90,94 | ||||||
Reseåkning | P24 ~ P43 | |||||||
Lyfthastighet | m / min | 0,8 / 5 | 0,8 / 5 | 0,8 / 5 | 0,8 / 5 | 0,8 / 5 | 0,8 / 5 | 0,8 / 5 |
Lyfthöjd | m | ≥ 6 | ≥ 6 | ≥ 6 | ≥ 6 | ≥ 6 | ≥ 6 | ≥ 6 |
Total motoreffekt | kw | 4,31 | 4,31 | 4,31 | 4,31 | 4,67 | 4,67 | 4,67 |
Kranhastighet | m / min | 3-30 | 3-30 | 3-30 | 3-30 | 3-30 | 3-30 | 3-30 |
Vagnhastighet | m / min | 2-20 | 2-20 | 2-20 | 2-20 | 2-20 | 2-20 | 2-20 |
Arbetstjänst | M5 / A5 | |||||||


English
ไทย
Bai Miaowen
Việt Nam
Nederlands
Polski
اردو
hrvatski
Norsk
Čeština
עברית
slovenčina





